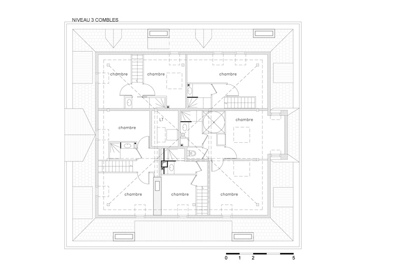
Réhabilitation d'un Hôtel Particulier

TILT Architectes Agence d'architecture contemporaine, Nantes
Mentions légales - Plan du site
Réhabilitation d'un Hôtel Particulier
Maîtrise d'ouvrage: Privée
localisation: Nantes (44)
Programme: création de 8 logements collectifs
Travaux: maçonnerie, frangements dans murs de pierre, couverture, menuiseries, plâtrerie isolation, électricité, plomberie-chauffage
Surface: shon, 800 m2
Coût travaux: 1 234 400 TTC
Maîtrise d'oeuvre: TILT architectes
 
isolation renforcée, traitement acoustique des planchers anciens en bois, mise en oeuvre de menuiseries double vitrage + lame d'argon.